Dessinateur Projeteur

CREAPLAN Nicolas MICOU,

basé à SULNIAC dans le Morbihan en Bretagne, FRANCE

est un dessinateur projeteur bâtiment

spécialisé pour toutes les missions auprès des professionnels du bâtiment :

architectes, architectes d’intérieur, maîtres d’œuvre, entreprise

 

Travail avec les logiciels Autocad, Zwcad, Sketchup pro, Archicad

 

 

CREAPLAN Dessinateur projeteur

métreur

architecte

VANNES

SULNIAC

PLOEREN

RENNES

PLESCOP

MORBIHAN

LANNILIS

LESNEVEN

BREST

QUIMPERS

LORIENT

LANESTER

PONTIVY

LOCMINE

SAUMUR

DOUE-LA-FONTAINE

BRETAGNE FRANCE

dessinateur projeteur et métreur descripteur spécialisé

en sous-traitance pour les architectes, maîtres d’œuvres, architectes d'intérieur, entreprises du bâtiment, bureaux d'études et particuliers,

construction, rénovation, extension, agencement,

maisons individuelles, habitations, maisons de retraite, scolaires, hôtellerie, industrie

 

Votre partenaire technique 
dessinateur projeteur & métreur descripteur
spécialisé pour tous vos projets bâtiment


nos clients sont :
architectes 
architectes d'intérieur
bureau d'étude technique 
maître d’œuvre
agenceurs
entreprise du bâtiment
géomètre
particulier


« gagnez du temps et de l'argent ! Faites appel à un professionnel polyvalent »


dessinateur projeteur professionnel,la société CREAPLAN,
spécialisé dans le bâtiment, conçoit et réalise vos plans de tous type,modélisations,vues,élabore vos dossiers de permis de construire et autre autorisations,réalise tous type de descriptifs et métrés pour des missions partielle ou complètes 


Nicolas MICOU, dirigeant et fondateur de la société possède
une expérience variée dans le domaine du bâtiment :
-formation:génie civil & B.T.S bâtiments (mendès france à RENNES)
(eugène livet Nantes)
-dessinateur d’exécution-bureau d'études béton armé
-topographe et créateur de bases de données patrimoniales 
(géomètre)
-dessinateur en construction de maisons individuelles
-maître d’œuvre
-dessinateur projeteur et métreur descripteur-cabinet d'architecture(10ans)
-création de la société CREAPLAN début 2015


depuis sa création en 2015,CREAPLAN propose des solutions
sur mesure aux professionnels du BTP,pour des missions partielles
ou complètes,de courte ou longue durée .


Nos engagements

qualité
la philosophie de notre société CREAPLAN:proposer des prestations de qualité,adaptées aux besoins de ses clients,avec des solutions simples et économiques.
Pour des missions ponctuelles,et pour que vous puissiez travailler sur les fichiers dwg sans perturber vos habitudes de travail,nous sommes en mesure de nous adapter à vos gabarits et chartre graphique de dessin. 

Transparence des tarifs
nos prestations sont détaillées sous forme de forfait pour une transparence totale des coûts et ce dès le devis.
Pour tout renseignement sur nos tarifs n'hésitez pas à nous contacter !

Rigueur
vos projets sont important,CREAPLAN apporte toute la rigueur nécessaire,s'attache à respecter vos délais et à vous fournir des prestations vérifiées et soignées.

Environnement
nous sommes sensibilisés au développement durable,sur les aspects de la haute qualité environnementale et du bio-climatisme avec un suivi permanent des évolutions techniques.

 

Nos outils

-postes informatique adaptés pour logiciel du BTP
-logiciels :
   AUTOCAD/ZWCAD:dessin technique
   SKETCHUP PRO:modélisation 3D
   ARCHICAD ARCHLINE:dessin technique 3D
   PHOTOSHOP:retouches d'images 
   MICROSOFT/OPEN OFFICE:logiciel de bureautique
-matériel spécifiques pour relevés:télémètres laser,niveau laser,appareil photos numérique...


   

- ACCUEIL

 

- SOCIÉTÉ

 

- PLANS

 

- PERMIS DE CONSTRUIRE

 

- MÉTRÉS & ÉTUDES

 

- RÉFÉRENCES

 

- CONTACTEZ-NOUS

 

Le partenaire technique de vos projets bâtiment

 

 

 

Vous êtes

 

 CREAPLAN créaplan CREA PLANS CREA-PLANS dessinateur projeteur fndi

 

architecte, architecte d'intérieur, agenceur, entreprise du bâtiment, bureau d'études, maître d’œuvre...

 

 

 

Vous avez

 

un projet de construction, de rénovation ou d’extension

 

 

 

Nos domaines d’activité :

 

- Maison individuelle

 

- Maisons de retraite

 

- Hôtellerie

 

- Tertiaire

 

- Industrie

 

- Agencement intérieur

 

 

 

Dessinateur projeteur professionnel, La SOCIÉTÉ CREAPLAN, spécialisée dans le bâtiment, conçoit et réalise vos plans, élabore vos dossiers de permis de construire, réalise tous types de descriptifs et métrés pour des missions partielles ou complètes, de courte ou de longue durée.

 

Membre de la Fédération Nationale des Dessinateurs Projeteurs Indépendants (F.N.D.I.)

 

Assurance responsabilité civile professionnelle

 

Assurance décennale spécifique à notre activité

La société CREAPLAN, créée en janvier 2015, propose des solutions sur mesure aux professionnels du B.T.P. pour des missions pour des missions partielles ou complètes, de courte ou de longue durée.

 

 

 

LE DIRIGEANT  

 

 

 

Nicolas MICOU, fondateur et dirigeant de CREAPLAN

 

 

 

Formation du bâtiment (Bac Génie civil et B.T.S. Bâtiment)

 

 

 

+ de 15 ans d'expériences professionnelles

 

  • Dessinateur d'exécution - Bureau d'étude béton armé.

  • Topographe et créateur de bases de données patrimoniales - Géomètre

  • Dessinateur en construction de maison individuelle - Constructeur

  • 10 ans en tant que dessinateur projeteur et métreur descripteur - Cabinet d'architecture

 

 

 

Ces expériences variées et ma polyvalence me permettent de répondre à tous types de mission

 

 

 

NOS ENGAGEMENTS

 

 

 

QUALITE

 

La philosophie de notre société CREAPLAN : proposer des prestations de qualité, adaptées aux besoins de ses clients, avec des solutions simples et économiques.

 

 

 

TRANSPARENCE DES TARIFS

 

Nos prestations sont détaillées sous forme de forfait pour une transparence totale des coûts et ce dès le devis. Pour tout renseignement sur nos tarifs n'hésitez pas à nous contacter !

 

 

 

RIGUEUR

 

Vos projets sont importants. CREAPLAN apporte toute la rigueur nécessaire, s’attache à respecter vos délais et à vous fournir des prestations vérifiées et soignées.

 

 

 

ENVIRONNEMENT  

 

Nous sommes sensibilisés aux aspects de la Haute Qualité Environnementale et au bioclimatisme avec un suivi permanent des évolutions techniques.

 

 

 

NOS OUTILS

 

- Postes informatiques adaptés pour logiciels du BTP

 

- Logiciels :

 

- AUTOCAD / ZWCAD dessin technique

 

- SKETCHUP PRO 2015 modélisation 3D

 

- REVIT dessin technique 3D

 

- PHOTOSHOP retouches d'images

 

- MICROSOFT / OPEN OFFICE logiciels de bureautique

 

 

 

- Matériel spécifiques pour relevés : télémètres laser, niveau laser, appareil photos numérique...

 

 

 

 

 

PAGE VOS PLANS

 

 

 

 

 

CREAPLAN RÉALISE TOUS VOS PLANS :

 

 

 

1) Plans de bâtiments existants  

 

 

 

Nous réalisons avec la plus grande rigueur des plans de bâtiments existants complets, permettant l'étude d’un projet de rénovation, agrandissement ou réagencement, en toute sérénité et sans mauvaises surprises…

 

- Réalisation des relevés

 

- Prises de mesures en 3 dimensions,

 

- Repérage des éléments de structure,

 

- Repérage des réseaux localisables (EP, EU, arrivées électrique, gaz, eau, etc...).

 

- Prise de vues des ouvrages existants

 

sur demande (photos des points techniques et photos générales intérieures et extérieures)

 

- Réalisation des plans en 2D :

 

- Plans de niveaux et masse.

 

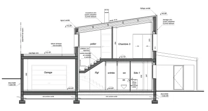
- Coupes sur bâtiment

 

- Façades, ...

 

- Réalisation sur demande de la modélisation 3D

 

Réalisé avec Sketchup Pro et présentation d'un carnet de vues sur demande.

 

 

 

Nous vous remettons des fichiers de présentation en Pdf, ainsi que les fichiers de montage (dwg, skp, etc...) permettant l'utilisation des relevés par le maître d’œuvre qui réalisera l'étude de projet.

 

 

 

  1. Plans d’avant-projet, études

 

 

 

- Vérification des règles d'urbanisme et techniques

 

- Réalisation des différents plans, coupes et façades, en cohérence avec le programme souhaité par le maître d'ouvrage.

 

- Modélisation 3D : maquette virtuelle présentant les vues intérieures et extérieures du projet.

 

 

 

  1. Plans techniques

 

 

 

Nous proposons des plans techniques détaillés pour :

 

- une compréhension claire par les entreprises, et permettant un chiffrage plus précis

 

- un déroulement des travaux plus serein

 

 

 

- Réalisation des différents plans nécessaires à un dossier d’appel d’offres :

 

Plans de masse

 

Plan de niveau

 

Coupes et façades

 

Plans de détails et schémas techniques : gros-oeuvre, charpente, électricité, plomberie, électricité, chauffage),....

 

 

 

 

 

 

 

 

 

PAGE VOS PERMIS DE CONSTRUIRE

 

 

 

 

 

CREAPLAN constitue tous vos dossiers administratifs de travaux complets ou partiels.

 

 

 

- Permis de construire et déclaration préalable :

 

 

 

L'étude complète d'un dossier comprend :

 

 

 

- Vérification de la conformité du projet par rapport aux règles d'urbanisme tel que PLU et règlements éventuels de lotissement, ...

 

- Vérification des organismes consultés (ABF,...)

 

- listing et récupération de toutes les informations et pièces nécessaires,

 

- Réalisation des plans et vues nécessaires au dossier comprenant les retouches

 

d'images pour insertion du projet dans le site.

 

- Vérification de nécessité des dossiers spécifiques (ERP, accessibilité, sécurité

 

incendie, sismicité,...)

 

- possibilité de mise en relation avec les professionnels compétents pour les études spécifiques (géomètre pour plan de bornage, thermicien pour attestation étude thermique, BET pour sismicité, ....)

 

 

 

- Permis de démolir

 

 

 

- et toute autre types de déclaration,....

 

 

 

Vous êtes particulier et vous souhaitez déposer

 

Une déclaration de travaux (permis de construire, déclaration préalable), pour :

 

- la modification de façades,

- la création et modification de clôtures,

- la réalisation d'une petite extension etc…

 

Pour simplifier vos démarches administratives et vous faire gagner du temps :

 

- CREAPLAN vous apporte une solution, à moindre coût, sur mesure à toutes vos demandes en réalisant un dossier complet adapté à votre projet

Vous n'êtes pas sur place, nous pouvons déposer votre dossier pour instruction sur demande.

 

- Vous gagnez en délais d'instruction : un refus ou demande de pièces complémentaires peuvent vous faire perdre de 2 à 3 mois minimum.

 

 

 

 

PAGE VOS MÉTRÉS ET ÉTUDES

 

 

 

 

 

- DESCRIPTIFS ET AVANT-MÉTRÉS :

 

 

 

CREAPLAN réalise les descriptifs, et les métrés quantitatifs des ouvrages des différents lots, complémentaires des plans techniques permettant aux entreprises de répondre dans le cadre d'appels d'offres.

démolitions

terrassements

gros-oeuvre

charpente bois

charpente métallique

serrurerie / ferronnerie / métallerie

couverture

étanchéité

Bardage

enduit / isolation extérieure

menuiseries extérieurs bois, alu, pvc, mixtes bois/alu

menuiseries intérieures

cloisonnements

plâtrerie

faux-plafonds

électricité / vmc

domotique

chauffage / climatisation

plomberie

désenfumage / incendie

revêtements de sols durs

revêtements de sols souples

parquets

peinture / revêtements muraux

agencement / mobilier

stores

aménagements paysagers

voiries et réseaux divers

fumisterie

 

Habitation

 

 

Maisons de retraite

 

 

Hôtellerie

 

 

Tertiaire

 

 

Industrie

   Construction   Rénovation   Extension   Agencement

Relevé de bâtiments

 

 

Plans et modélisations 3D

phases APS, APD, PC, PRO,DOE

 

 

Dossiers administratifs

 

 

Quantitatifs

 

Notre clientèle :

 

- Professionnels : 

architectes, maîtres d'œuvre, architectes d'intérieurs, 

bureaux d'études techniques, agenceurs, entreprises ...

 

- Particuliers :

pour projets de petites extensions, rénovation intérieur, ...

et que le recours un architecte n'est pas obligatoire.

Nous accompagnons les particuliers dans leur projet, lorsqu'ils souhaitent faire appel à une maîtrise d'œuvre, pour le suivi de leurs travaux. Cette prestation sera réalisée par un maître d'œuvre spécialisé dans le suivi de travaux et indépendant du contrat du dessinateur projeteur.

Notre objectif :

que vous soyez accompagné tout au long de votre projet, par des professionnels compétents, pour une bonne réalisation de votre projet en assurant votre sérénité tout au long des études et travaux.

Membre de la Fédération  Nationale  des  Dessinateurs  Indépendants